Zu Vermieten €1.850 - Halle
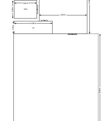
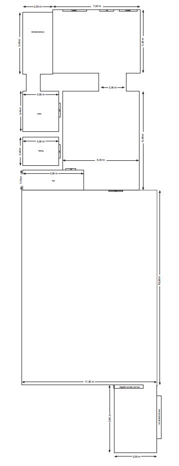
Die zur Vermietung stehende Gewerbefläche umfasst eine großzügige Halle sowie angeschlossene Büro-, Sozial- und Arbeitsräume. Die Halle inklusive Vorraum sind insgesamt ca. 204 m² groß. Die Halle ist über eine Torbreite von ca. 3,50 m und eine Torhöhe von ca. 2,65 m bequem befahrbar und erreichbar. Im Anschluss gelangt man zunächst in einen ebenerdigen Vorraum. Von dort führt eine großzügige, ca. 2,40 m breite und 2,00 m hohe 2,50-Flügeltür in die eigentliche Halle.
Die Hallenfläche präsentiert sich hell und funktional. Durch integrierte Lichtbänder ist sie sehr gut natürlich belichtet. Der Boden ist als robuster Industrieboden mit hoher Belastbarkeit ausgeführt und somit bestens für gewerbliche Nutzung, Lagerung oder Produktion geeignet. Zuletzt wurde die Fläche, als Druckerhalle mit entsprechenden Druckmaschinen genutzt, was die Eignung für gewerbliche und industrielle Zwecke zusätzlich unterstreicht.
Über einen Durchgang ist die Halle mit den separaten Büro- und Ausstellungsräumen verbunden. Ergänzend stehen Sozialräume sowie ein Arbeitsraum für die Halle zur Verfügung, wodurch eine vielseitige und praxisgerechte Nutzung ermöglicht wird.
Das angebotene Objekt liegt im Zentrum von Viersen. Von hier aus sind die Autobahnen 52,61 und 44 über den Willy-Brandt-Ring schnell und unkompliziert zu erreichen. Damit verfügt das Objekt über eine sehr gute Anbindung an den Großraum Düsseldorf und Köln und das Ruhrgebiet, sowie die niederländische Grenze und damit Venlo und Roermond.
In der Gesamtmiete ist die Beheizung der Halle enthalten. Die Abrechnung für das Büro erfolgt mittels Heizkostenverteiler.
Die Mietangaben verstehen sich zuzüglich der gesetzlichen Mehrwertsteuer.
Weiter Details
- Heizungsart: Zentralheizung
- Kaltmiete: 1.850 €
- monatl. Betriebs-/Nebenkosten: 810 €
- Preise zuzüglich Mehrwertsteuer: ja
- Kaution: 5.550 €
- Nutzfläche: 324 m²
- Gesamtfläche: 324 m²
- Lagerfläche: 204 m²
- Bürofläche: 91 m²
- Sonstige Fläche: 29 m²
- Befeuerung: Gas
- Immobilie ist verfügbar ab: nach Vereinbarung






