Zu Verkaufen €168.000 - DG-Wohnung
Im schönen Wesselbachtal in Hagen- Hohenlimburg entstand 2003 dieses 6-Familienhaus.
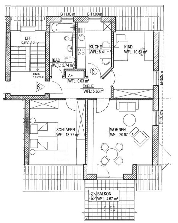
Über einen gepflegten Vorgarten und das helle Treppenhaus erreichen Sie bereits im 2. Obergeschoss diese ca. 70,5 m² große Dachgeschosswohnung.
Über die zentrale Diele mit praktischem Einbauschrank sind alle Wohnräume zugänglich.
Gleich links befindet sich das zeitlos weiß geflieste Tageslichtbad mit Badewanne und Dusche. Daneben liegt die Küche.
Geradeaus gelangen Sie in eines der beiden Schlafzimmer mit einer Größe von ca. 11 m².
Auf der rechten Dielenseite befindet sich zuerst das zweite, ca. 14 m² große Schlafzimmer. Daneben folgt das ca. 21 m² große Wohn-/ Esszimmer mit einem doppelflügeligen Ausgang auf den ca. 9 m² großen Sonnenbalkon. Lassen Sie sich hier von der herrlichen Aussicht ins Wesselbachtal und auf das Schloss verzaubern.
Einen Kellerraum sowie ein Außenstellplatz für Ihren PKW, der sich direkt hinter dem Haus befindet, gehören ebenfalls zur Wohnung.
Der Hausgemeinschaft stehen zudem eine Waschküche und ein Fahrradkeller zur Verfügung.
Hohenlimburg – Wesselbach
Das Haus befindet sich etwa 1 km vom Stadtzentrum Hohenlimburg entfernt in waldreicher Umgebung im Wesselbachtal. Kindergärten sowie öffentliche Busanbindungen sind fußläufig erreichbar.
Hohenlimburg, bekannt durch seine Schlossfestspiele, ist der größte und attraktivste Vorort von Hagen mit eigenem Stadtkern mit zahlreichen Einkaufsmöglichkeiten.
Grund- und weiterführende Schulen sind in Hohenlimburg vertreten.
Das Freizeitangebot ist interessant und reichhaltig. Die gesamte Freizeitpalette von Wassersport über Tennis, bis zum Radfahren und Wandern, hält Hohenlimburg für Sie bereit. Dazu lädt das Schloss Hohenlimburg zu Entdeckungstouren und den alljährlichen Schlossfestspielen ein.
Die Innenstadt von Hagen erreichen Sie über die A 46 in ca. 10 Autominuten. Letmathe ist von hieraus ebenfalls schnell erreichbar. Bus-/und Bahnverbindungen sind über den Busbahnhof im Zentrum von Hohenlimburg in alle Richtungen vorhanden.
Dachform: Satteldach gedämmt
Fassade: Putzfassade mit Wärmedämmung
Etage: Dachgeschoss (2.OG)
Gegensprechanlage: Ja
Fenster: Kunststofffenster mit Isolierverglasung, Velux- Dachflächenfenster aus Holz
Rollläden: Ja, manuell im Badezimmer, Küche, Wohnzimmer und einem Schlafzimmer
Innentüren: Holz, weiß, Küchentür mit Glaseinsatz
Türzargen: Stahl, weiß
Bodenbeläge: Durchgehend gefliest
Badezimmer: Tageslichtbad mit Badewanne und Dusche
Balkon: Ca. 9 m² Grundfläche, mit Süd- Ostausrichtung, Markise und schönem Ausblick über das Wesselbachtal
Heizungsart: Gaszentralheizung mit Brennwerttechnik
Wasseruhr: Ja, sowohl Kalt-/ Warmwasser
Garage /Stellplatz: Außenstellplatz direkt hinter dem Haus mit Zugang zum
Kellergeschoss, bereits im Kaufpreis enthalten.
Hausgeld: 314,00 €/ Monat darin enthalten sind die Kosten für Wasser, Abwasser und Entwässerung, Heizkosten nach Verbrauch (inkl. Wartung und Betrieb der Heizungsanlage), Müllabfuhr, städtische Straßen-/ und Winterdienst, objektbezogener Außenanlagen/Gartenpflege der Gemeinschaftsflächen, Allgemeinstrom, Versicherungen des Gemeinschaftseigentums, Wartung der Rauchmelder, Verwaltung, Rücklage, Kontoführungsgebühren;Darin nicht umlagefähiger Anteil 140 €
Treppenhausreinigung: Im Wechsel unter den Bewohnern
Nebenflächen: Eigener Kellerraum sowie gemeinschaftlich nutzbarer Wasch-/Trockenraum und Fahrradkeller. Zugang zum über auf der Hausrückseite möglich
Grundbesitzabgaben: 491 €/ Jahr für Grundsteuer B
Weiter Details
- Zimmer insgesamt: 3
- Anzahl Stellplätze: 1
- Heizungsart: Zentralheizung
- Anzahl Etagen: 2,0
- Etage: 2
- Zusatzinformation zur Lage: Wesselbach
- Hausgeld: 280 €
- Kaufpreis: 168.000 €
- Courtage: 3.57 %
- Anzahl Außenstellplätze: 1
- Nutzfläche: 5 m²
- Wohneinheiten: 6
- Art der Ausstattung: Standard
- Befeuerung: Gas
- Bodenbelag: Fliesen
- Badausstattung: Dusche, Badewanne
- Stellplatzart: Freiplatz
- Baujahr: 2002
- Zustand: gepflegt
- Immobilie ist verfügbar ab: sofort










