Zu Verkaufen €165.000 - Etagenwohnung
In einer der beliebtesten Wohnlagen in Hagen-Emst, am Anfang einer Sackgasse und zurückversetzt von der Straße gelegen, befindet sich diese gepflegte 3-Zimmer-Eigentumswohnung im 1. Obergeschoss eines ebenso gepflegten
7-Familienhauses.
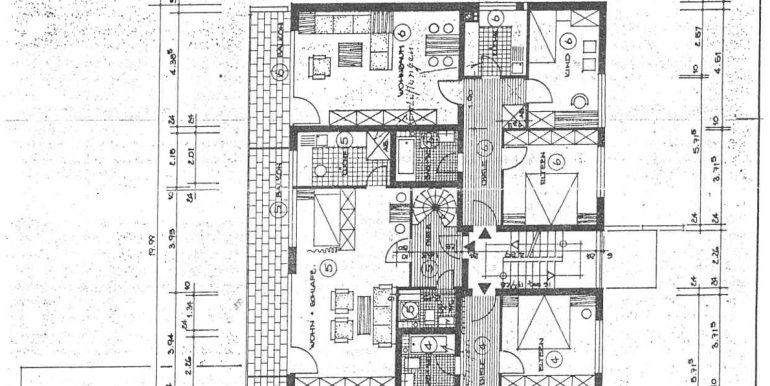
Auf ca. 74 m² Wohnfläche erwartet Sie ein durchdachter Grundriss. Sie betreten die Wohnung und gelangen in die zentrale Diele mit praktischem Abstellraum und Zugang zu allen Räumen.
Das innenliegende Badezimmer mit Eckdusche ist bereits modern gefliest. Zwei gut geschnittene und fast gleichgroße Zimmer (ca. 13 m²/ 12 m²) bieten flexible Nutzungsmöglichkeiten, ideal als Schlafzimmer, Homeoffice oder Kinderzimmer.
Der Mittelpunkt der Wohnung ist das großzügige, ca. 26 m² große Wohn-/ und Esszimmer. Die große Fensterfront Richtung Süden sorgt für eine optimale Belichtung. Von hier aus haben Sie zudem einen direkten Zugang auf den ruhig auf der Hausrückseite gelegenen und nach Süden ausgerichteten ca. 8 m² großen Balkon.
Ein echter Pluspunkt in dieser Lage ist die Garage direkt vor dem Haus, die über ein elektrisch bedienbares Sektionaltor verfügt.
Neben einem eigenen Kellerabteil steht noch ein gemeinschaftlich nutzbarer Wasch-/ und Trockenraum zur Verfügung.
Diese Wohnung eignet sich sowohl für Eigennutzer als auch Kapitalanleger, die Wert auf eine nachhaltige Investition in guter Wohnlage legen.
Hagen- Emst
Der Hagener Stadtteil Emst zählt nicht ohne Grund zu den beliebtesten Wohnlagen der Stadt. Die zentrale und zugleich angenehm grüne Umgebung macht Emst besonders attraktiv für Familien und alle, die eine ausgewogene Kombination aus urbaner Infrastruktur und naturnahem Wohnen schätzen. Sämtliche Einrichtungen des täglichen Bedarfs befinden sich in fußläufiger Nähe: Eine Sparkasse, Apotheke, Friseur, ein REWE-Supermarkt, Bäckerei etc. sowie Ärzte sichern eine komfortable Nahversorgung ohne lange Wege. Darüber hinaus gibt es mehrere Kindergärten sowie eine Grundschule im Stadtteil.
Der Emster Park mit seinen Spiel-/ und Sportplätzen bietet vielfältige Freizeitmöglichkeiten für Kinder, Jugendliche und Erwachsene . Ergänzt wird das Angebot durch ein aktives Vereinsleben mit u.a. Tennis-/, Handball-/ und Fußballvereinen. Darüber hinaus laden zahlreiche Wege in der Umgebung zu ausgedehnten Spaziergängen oder Joggingrunden im Grünen ein.
Trotz der ruhigen und familienfreundlichen Atmosphäre ist die Verkehrsanbindung hervorragend: Die Autobahnauffahrt Hagen-Süd zur A45 ist in wenigen Minuten mit dem Auto erreichbar und gewährleistet eine schnelle Anbindung an das überregionale Straßennetz.
Emst vereint somit Lebensqualität, Infrastruktur und Erreichbarkeit auf besonders überzeugende Weise.
Bauweise: Massiv
Decken: Stahlbeton
Fenster: Isolierverglaste Kunststofffenster
Rollläden: In allen Räumen, manuell bedienbar
Hauseingangstür: Aluminium, weiß. Eingangsbereich überdacht
Wohnungseingangstür: Holz mit Türspion und Zusatzschloss
Gegensprechanlage: Vorhanden
Innentüren/-zargen: Holz, Küchentür mit Glaseinsatz, Voll-Glastür im Wohnzimmer/ Stahlzargen
Bodenbeläge: Diele, Wohn-/Esszimmer und ein Schlafzimmer Stäbchenparkett, weiteres Schlafzimmer ohne Bodenbelag, Küche und Bad gefliest
Badezimmer: Innenliegendes, weiß/grau marmoriert gefliestes Duschbad
Heizung: Ölzentralheizung, Baujahr 2010
Warmwasser: Durchlauferhitzer bzw. Untertischgerät
Wasseruhr: Vorhanden
Keller: Ja, ca. 8 m²
Gemeinschaftsräume: Wasch-/ Trockenraum
Terrasse/ Balkon: Balkon, ca. 8 m² groß mit Südausrichtung, ruhig auf der Hausrückseite gelegen
PKW- Stellplatz: Garage mit elektrisch bedienbarem Sektionaltor
Hausgeld: 370 Euro / Monat darin enthalten sind die Kosten für Wasser, Abwasser und Entwässerung, Heizkosten nach Verbrauch (inkl. Wartung und Betrieb der Heizungsanlage), Müllabfuhr, städtische Straßen- und Winterdienst, Allgemeinstrom (Haus und Garage), Versicherungen des Gemeinschaftseigentums, Wartung der Rauchwarnmelder, objektbezogener Winterdienst und Außenanlagen-/ sowie Gartenpflege der gemeinschaftlichen Flächen, Verwaltung, Rücklagen- darin enthaltener Anteil nicht umlagefähiger Kosten 148 Euro/ Monat
Treppenhausreinigung: Im Wechsel
Grundbesitzabgaben: 364 Euro/ Jahr für Grundsteuer B
Rücklagen: rd. 58.000 Euro (Stand 31.12.2024)
Weiter Details
- Zimmer insgesamt: 3
- Heizungsart: Zentralheizung
- Anzahl Etagen: 1,0
- Etage: 1
- Zusatzinformation zur Lage: Emst
- Kaufpreis: 165.000 €
- Courtage: 3.57 %
- Anzahl Garagenstellplätze: 1
- Nutzfläche: 8 m²
- Balkone: 1
- Wohneinheiten: 7
- Art der Ausstattung: Standard
- Befeuerung: Öl
- Bodenbelag: Fertigparkett
- Badausstattung: Dusche
- Stellplatzart: Garage
- Baujahr: 1972
- Zustand: gepflegt
- Immobilie ist verfügbar ab: sofort
















