Zu Verkaufen €970.000 - Einfamilienhaus
Bauvorhaben: Hier entsteht in individueller Planung ein Einfamilienhaus mit ca. 120 – 200 m² Wohnfläche in gehobener Bauausführung.
Der Interessent stimmt mit dem erfahrenen Architekten seine Wunschplanung ab. Bei der namenhaften Baufirma planen Sie Ihr Wunschhaus. Eine seltene Gelegenheit Ihre Traumvilla zu erstellen.
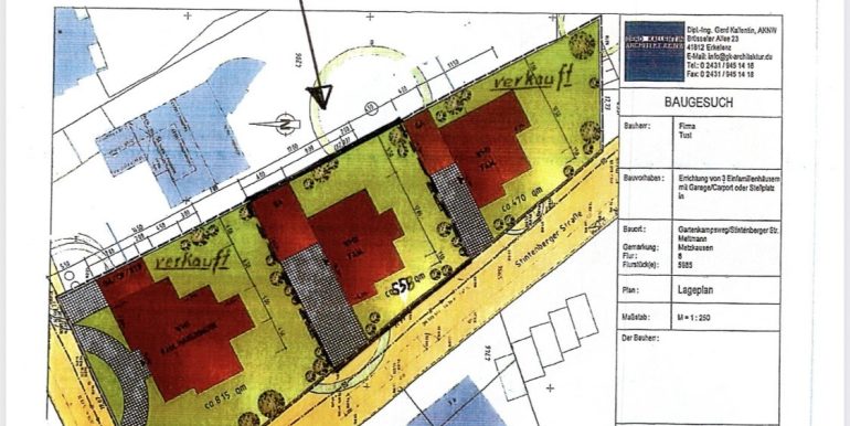
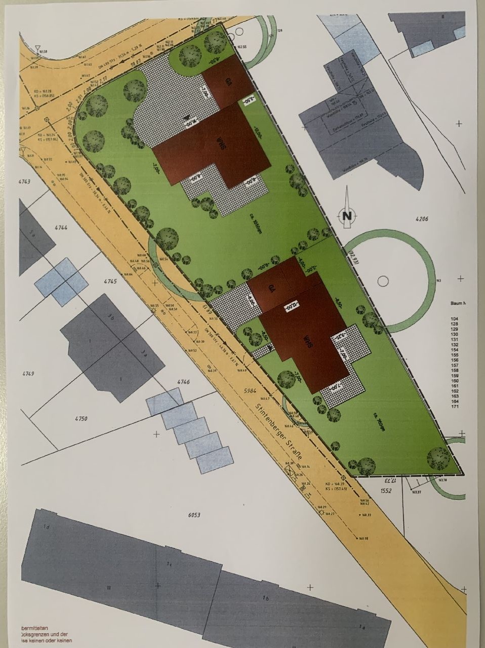
Die reine Wohnstraße Gartenkampsweg / Stintenbergerstraße befindet sich in verkehrsberuhigter Wohnlage im beliebten Ortsteil Mettmann Metzkausen. Die Nachbarbebauung besteht überwiegend in gewachsener Wohnlage, Bebauung mit Einfamilienhäusern bzw. Eigentumswohnungen in Gebäuden bis zu 2 ½ geschossiger Bauweise. Ebenso hervorzuheben ist die gute Infrastruktur und die Verkehrsanbindung dieser Wohngegend.
Grundstücksgröße: insgesamt ca. 558 m²
Etagenzahl: 2
Zimmer: 4 bis 6
Kaufpreis je nach eigenen Ausführungswünschen und gewünschter Wohnfläche ab 800.000 EUR
KP GR und Gebäude
Wfl 120qm KP 800.000 –
Wfl 170qm KP 970.000,-
bei gehobener Ausführung und eigener Grundrissentwicklung.
– Im Alleinauftrag –
Haftung: Wir bemühen uns alle Angaben so vollständig wie möglich zu machen. Da wir uns hierbei auf die Angaben der jeweiligen Verkäufer verlassen müssen, können wir keine persönliche Haftung übernehmen.
Courtage: Die anteilige, für den Käufer anfallende, Nachweis- bzw.Vermittlungsgebühr beträgt 3,57 % inkl. der gesetzlichen MwSt.des Kaufpreises.
Finanzierung: Durch laufende Zusammenarbeit mit namhaften Finanzierungs-instituten sind wir stets in der Lage, Ihnen eine auf Ihre persönlichen Verhältnisse abgestimmte Finanzierung zu ermöglichen. Für die zusätzliche Finanzierungsbearbeitung wird von uns keine Kostenberechnung vorgenommen.
Weiter Details
- Grundstücksfläche: 558 m²
- Zimmer insgesamt: 4
- Anzahl Stellplätze: 2
- Heizungsart: Zentralheizung
- Anzahl Etagen: 2,0
- Zusatzinformation zur Lage: Mettmann - Metzkausen
- Kaufpreis: 970.000 €
- Courtage: 3.57 %
- Anzahl Außenstellplätze: 1
- Anzahl Garagenstellplätze: 1
- Baujahr: 2026
- Immobilie ist verfügbar ab: nach Fertigstellung

