Zu Verkaufen €2.400.000 - Produktion
Zum Kauf bieten wir Ihnen eine Gewerbeimmobilie auf einem ca. 14.667 m² großen Grundstück, die mit einer Gesamtfläche von 6.550 m² vielseitige Nutzungsmöglichkeiten bietet. Auf einem ehemaligen Bundeswehrgelände, erbaut im Jahr 1954, wurde sie seit 2000 auf Grund von Umnutzungen laufend modernisiert, aktuell ganz ohne Investitionsstau.
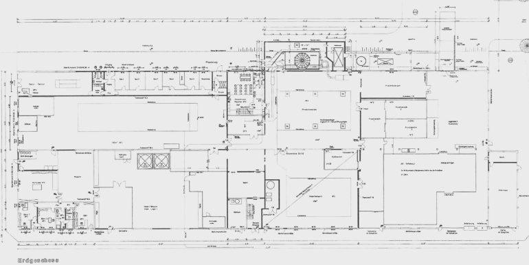
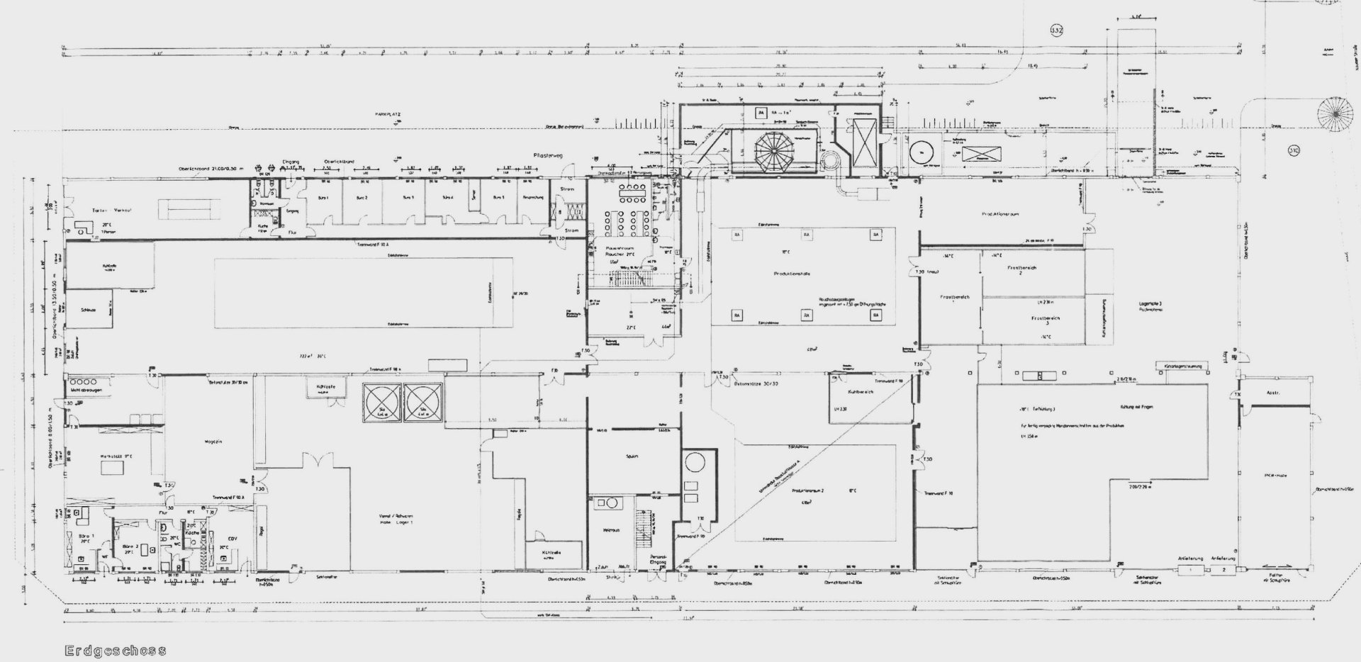
Die Stahlrahmenkonstruktion der Halle bietet Flexibilität: Die Flächen sind individuell teilbar und passen sich spezifischen Anforderungen an. Die Gewerbehalle dient aktuell als Produktionshalle für Backwaren. Die technische Ausstattung entspricht den heutigen Anforderungen einer modernen Gewerbehalle, z.B. RWA-Anlage, Raumluftanlage, Starkstrom, Schnelllauftore, Hochregallager, etc.
Sektionaltore ermöglichen den einfachen An- und Abtransport von Produkten. Darüber hinaus stehen Ihnen großzügige Büro- und Mitarbeiterräume sowie Aufenthaltsräume zur Verfügung, die eine angenehme Arbeitsatmosphäre schaffen.
Außerdem bietet ein Tiefkühlhaus optimale Bedingungen für die Lagerung von temperaturempfindlichen Produkten. Das Grundstück ist teilweise als Bauland ausgewiesen, was Ihnen die Möglichkeit eröffnet, bei Bedarf Anbauten zu realisieren und die Immobilie weiterzuentwickeln.
Die Halle ist bis zum 31.03.2027 vermietet. Die Verlängerungsoption ermöglicht dem Mieter den bestehenden Vertrag zu verlängern.
Nettokaltmiete 19.250,- EUR/mtl.
Jahresrohertrag 231.000,- EUR/p.a.
Indexmiete
Vermietung Teilfläche Parkplatz 280,- EUR/mtl.
Jahresrohertrag 3.360,- EUR/p.a.
Diese Immobilie bietet nicht nur eine gute Rendite, sondern auch die Perspektive einer späteren Eigennutzung.
Nutzen Sie die Chance, in eine Gewerbeimmobilie zu investieren, die durch ihre Ausstattung und Größe überzeugt. Hier finden Sie nicht nur eine Produktionsfläche, sondern ein vielseitiges Raumkonzept, das zahlreiche Nutzungsmöglichkeiten eröffnet. Lassen Sie sich diese Gelegenheit nicht entgehen!
Die Gemeinde Issum liegt am Niederrhein, den manche auch als grünen Westen Deutschlands bezeichnen. Issum selbst ist rund 20 Kilometer von der niederländischen Grenze entfernt. Verkehrstechnisch hat Issum eine hervorragende Anbindung an das Autobahnnetz des Ruhrgebietes, der Niederlande und schnellen Zugang zu gleich zwei Flughäfen: in Weeze und in Düsseldorf.
A57 (10 Autominuten entfernt), B58, B510, B9, Airport Niederrhein (30 min.), Airport Düsseldorf (37 min.).
Linie SB 30 Issum – Sevelen – Kamp-Lintfort – Moers DU
Linie 31 Geldern Issum Sevelen Rheurdt – Aldekerk
6,4 km zum Bahnhof Nieukerk (RE10 Niers-Express, Kleve-Krefeld-Düsseldorf)
– 35 PKW-Stellplätze
– zusätzliche Freiflächen
– RWA-Anlage
– Raumluftanlage
– Brandschutztüren
– Schnelllauftore
– Frosterzellen und Kühlräume
– Trafoanlage mit NSHV
– Ölzentralheizung mit Kunststofftanks
– Stahlrahmenkonstruktion
– Lichtkuppeln
Weiter Details
- Grundstücksfläche: 14.667 m²
- Anzahl Stellplätze: 36
- Heizungsart: Zentralheizung
- Zusatzinformation zur Lage: Sevelen
- Kaufpreis: 2.400.000 €
- Courtage: 0 % Provisionsfrei
- Anzahl Außenstellplätze: 35
- Anzahl Garagenstellplätze: 1
- Nutzfläche: 5.500 m²
- Gesamtfläche: 6.550 m²
- Lagerfläche: 500 m²
- Freifläche: 8.057 m²
- Bürofläche: 318 m²
- Sonstige Fläche: 232 m²
- Teilbar ab: 400 m²
- Befeuerung: Öl
- Stellplatzart: Garage, Freiplatz
- Baujahr: 1954
- Zustand: gepflegt
- Immobilie ist verfügbar ab: nach Vereinbarung























