ca. 98m² Laden-/Praxisfläche, in Witten-Herbede zu verkaufen

ca. 98m² Laden-/Praxisfläche, in Witten-Herbede zu verkaufen
58456 Witten, Deutschland
Zu Verkaufen €175.000 - Bürohaus
91927-7922-B 98 m² 1995 Baujahr

Laden: ca. 98,00m² NfL. 3 Räume, Küche, WC
Tiefgaragenstellplatz

Hinweis: Das Ladenlokal ist bis zum 30.06.2026 vermietet.
Mieteinnahmen EUR 799,- Nettokaltmiete monatlich zzgl. Nebenkosten.

Energieausweis in Vorbereitung!!!

Die Immobilie befindet sich in zentraler Lage von Witten-Herbede mit hervorragender Anbindung an die A43 und A1. Das Objekt selbst ist eine klassische Mischimmobilie mit Gewerbe und Wohnungen in dem u. a. Versicherungsmakler und eine Fahrschule ansässig sind. In direkter Umgebung der Nachbarschaft befinden sich namhafte Ankermieter wie die Volksbank, Netto, EDEKA, Action u. v. a.. Die Mischung aus Wohnen und Gewerbe ist gewachsen und stark ausgeprägt, sodass eine vielfältige Nutzung des Ladenlokals möglich ist.

Öffentliche Verkehrsmittel, die Buslinien SB 38, 67, Linie 320, 374 und 375 und der NE 17 halten direkt am Objekt. Zudem sorgt die umliegende Einzelhandelsstruktur für eine gute Parksituation.

Witten-Herbede gilt als gefragter Stadtteil mit hoher Kaufkraft und einer gewachsenen Struktur.

Helles, modernes Ladenlokal, Vinyl-Fußbodenoberbelag, fußbodentiefe Fenster, Wartebereich mit Empfang, 2 Behandlungsräume, Küche, WC-Anlage, abgehängte Kassettendecke mit integrierter Beleuchtung, Rauchwarnmelder, Kunststofffenster mit Isolierverglasung, ebenerdiger Zugang, Tiefgenstellplatz.

Weiter Details

  • Zimmer insgesamt: 3
  • Anzahl Stellplätze: 1
  • Zusatzinformation zur Lage: Witten-Herbede
  • Kaufpreis: 175.000 €
  • Courtage: 3.6 %
  • Anzahl Außenstellplätze: 1
  • Nutzfläche: 98 m²
  • Gesamtfläche: 98 m²
  • Bürofläche: 98 m²
  • Stellplatzart: Freiplatz
  • Baujahr: 1995
  • Zustand: neuwertig
  • Immobilie ist verfügbar ab: sofort

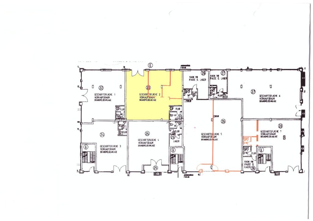
Grundrisse

Grundriss

Ähnliche Immobilien

Accessibility Toolbar