Menden: Reiheneckhaus in ruhiger Lage

Menden: Reiheneckhaus in ruhiger Lage
58708 Menden, Deutschland
Zu Verkaufen €229.000 - Reiheneckhaus
13381-4999 110 m² 3 Schlafzimmer 1 Badezimmer 1979 Baujahr 305 m²

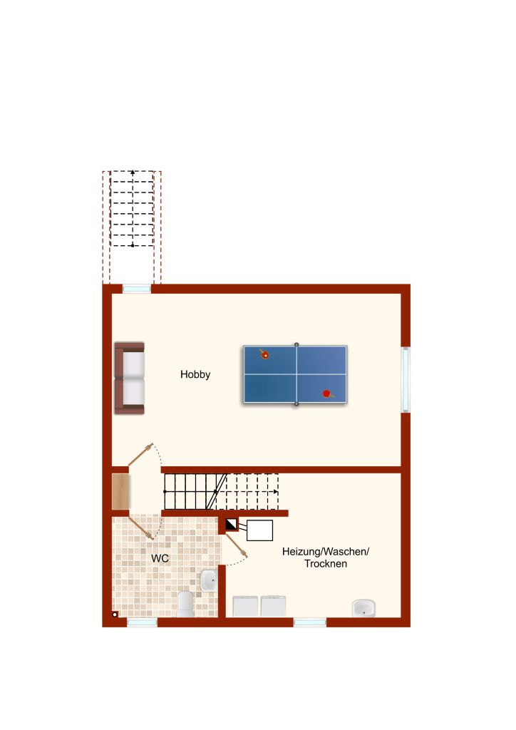
Das erst 1980 bezogene Haus besteht aus 2 Vollgeschossen zzgl. Vollkeller und Satteldach (Stauraum). Im EG befinden sich neben der Eingangsdiele nebst Garderobenbereich eine schöne Wohnküche, Wohn- und Essbereich mit Terrassen- und Gartenzugang sowie ein Gäste-WC. Im OG finden Sie 3 Zimmer sowie ein Wannen-/Duschbad. Der Vollkeller bietet eine Waschküche, einen Hausanschluss-/Vorratsraum sowie einen großen Hobbyraum mit Gartenzugang.

Das sehr gepflegte Haus befindet sich weitestgehend im Zustand des Baujahres (die Heizung wurde bereits 2012 durch eine hochwertige Vaillant-Gasbrennwert ausgetauscht). Wir schätzen die erforderlichen Investitionen für Bäder, WC, Fenster sowie Haus- und Innentüren auf gut 70.000 EUR. Dafür haben Sie die Möglichkeit, alles ganz nach Ihrem persönlichen Geschmack zu gestalten.

Eine Garage gehört selbstverständlich dazu; zudem ist der Garten auch von außen zugänglich.

Zwischen Platte Heide und Bösperde, in einem reinen Wohngebiet, nur über einen Fußweg zu erreichen (Be- und Entladen möglich). Schulen, Geschäfte des täglichen Bedarfs … sind in 5 PKW-Minuten zu erreichen.

Weiter Details

  • Grundstücksfläche: 305 m²
  • Zimmer insgesamt: 4
  • Heizungsart: Zentralheizung
  • Anzahl Etagen: 2,0
  • Kaufpreis: 229.000 €
  • Courtage: 3.57 %
  • Anzahl Garagenstellplätze: 1
  • Nutzfläche: 54 m²
  • Separate WCs: 2
  • Terrassen: 1
  • Wohneinheiten: 1
  • Art der Ausstattung: Standard
  • Befeuerung: Gas
  • Badausstattung: Dusche, Badewanne, Fenster im Badezimmer
  • Stellplatzart: Garage
  • Baujahr: 1979
  • Zustand: gepflegt
  • Letzte Modernisierung: 2012
  • Immobilie ist verfügbar ab: 6 Wochen nach Kauf

Grundrisse

Grundriss EG

Grundriss OG

Grundriss UG

Ähnliche Immobilien

Accessibility Toolbar