Zu Verkaufen €299.000 - Einfamilienhaus
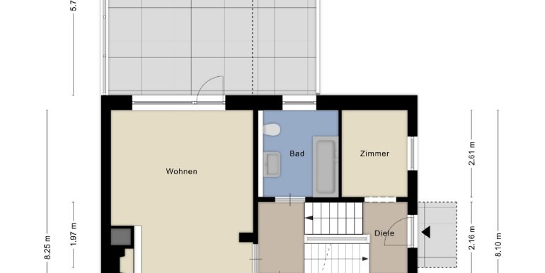
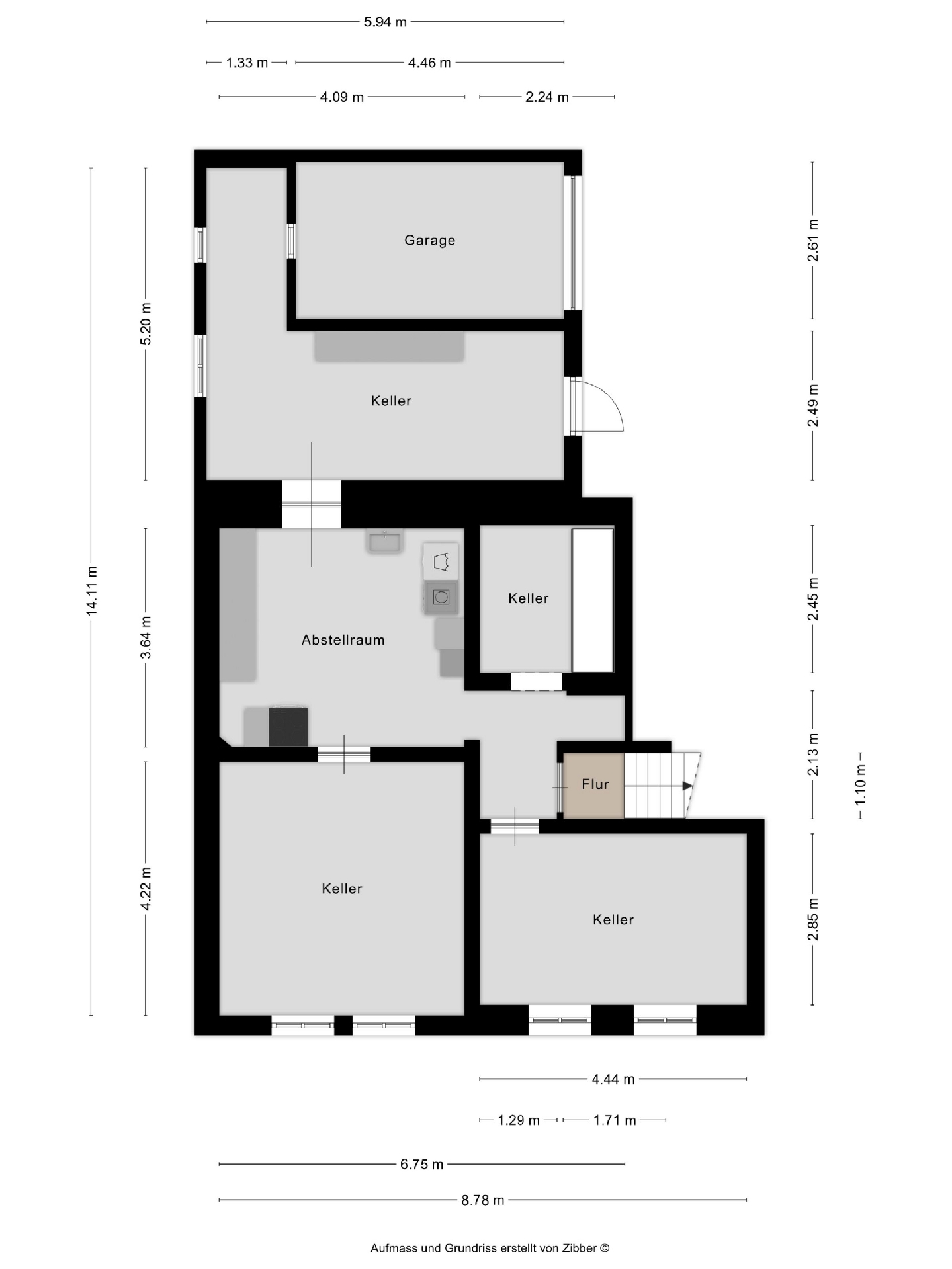
Willkommen in Ihrem neuen Zuhause! Dieses charmant verklinkerte Anwesen vereint zwei großzügige Geschosse unter einem Dach. Auf einem weitläufigen Grundstück von 2856 m² erstreckt sich Ihr persönliches Paradies mit einem großen Garten, der zum Verweilen, Spielen und Entspannen einlädt. Betreten Sie das Haus, so empfängt Sie ein heller Treppenaufgang der zu dem offenen Wohn-Essbereich führt. Dieser ist mit viel Licht durchflutet und schafft eine einladende Atmosphäre. Hier können Sie gemütliche Abende am Kamin verbringen oder mit Freunden nett verweilen. Die große Küche bietet genügend Raum für Kochaktivitäten. Das Badezimmer rundet diese Etage ab. Es wurde damals nachträglich eingebaut. Mit insgesamt fünf Zimmern über 2 Etagen, haben Sie genügend Raum für individuelle Gestaltungsmöglichkeiten ob als Schlafzimmer, Arbeitszimmer, Kinderzimmer oder Gästezimmer, hier findet jeder seinen Platz. Ein weiteres Badezimmer sorgt dafür, dass auch große Familien oder Gäste nie aufeinander warten müssen. Vom Wohnzimmer haben Sie Zutritt auf die große Terrasse. Diese ist der perfekte Ort, um die warmen Sonnenstrahlen zu genießen oder entspannte Grillabende zu veranstalten. Zusätzlich bietet das Haus eine praktische Doppelgarage, die nicht nur Platz für Ihre Fahrzeuge, sondern auch für Fahrräder bietet. Für Gartengeräte steht ein weiterer Schuppen zur Verfügung. Der Keller bietet Ihnen zusätzlichen Stauraum und die Möglichkeit, Ihre Hobbys zu verwirklichen. Dieses leerstehende Anwesen wartet darauf, von Ihnen mit Leben gefüllt zu werden. Nutzen Sie die Chance, ein Stück Geschichte zu bewahren und gleichzeitig Ihr persönliches Traumhaus zu gestalten. Lassen Sie Ihrer Kreativität freien Lauf und verwandeln Sie dieses Juwel in Ihr ganz persönliches Zuhause!
Die Lage in Kamen Wasserkurl zeichnet sich durch eine ruhige und familienfreundliche Umgebung aus, die sowohl Wohnqualität als auch eine gute Anbindung an die umliegenden Städte bietet. Die Nachbarschaft ist geprägt von Einfamilienhäusern und kleinen Wohnanlagen, die ideal für Familien sind. Die Umgebung ist grün und bietet zahlreiche Möglichkeiten für Freizeitaktivitäten. Die Infrastruktur in der Nähe ist gut ausgebaut. Einkaufsmöglichkeiten für den täglichen Bedarf sind in der näheren Umgebung vorhanden, darunter Supermärkte, Bäckereien und andere Einzelhandelsgeschäfte. Auch Schulen und Kindergärten sind in der Nähe zu finden. Die Anbindung an den öffentlichen Nahverkehr ist gegeben. Die nächstgelegene Bushaltestelle ist nur wenige Minuten entfernt. Zudem ist die Anbindung an die Autobahn A1 und A2 in kurzer Zeit erreichbar, was die Erreichbarkeit von Städten wie Dortmund und Bochum erleichtert.
Insgesamt bietet die Lage in Kamen Wasserkurl eine harmonische Kombination aus Ruhe, guter Infrastruktur und Verkehrsanbindung, die sie besonders attraktiv für Familien macht.
Weiter Details
- Grundstücksfläche: 2.856 m²
- Zimmer insgesamt: 6
- Heizungsart: Zentralheizung
- Anzahl Etagen: 3,0
- Kaufpreis: 299.000 €
- Courtage: 3.57 %
- Anzahl Garagenstellplätze: 1
- Nutzfläche: 86 m²
- Terrassen: 1
- Befeuerung: Öl
- Stellplatzart: Garage, Freiplatz
- Baujahr: 1930
- Zustand: renovierungsbedürftig
- Immobilie ist verfügbar ab: sofort















